1. hydrotechnik

    Position sensor
    Hydrotechnik in china
    Position sensor data download

    Highly accurate position measurement:

    The HySense PO 100 works on the measuring wire principle. It can be easily mounted and does not need linear guiding. It is suitable for use at load cranes, hydraulic presses and other installations where distances need to be measured or changes of position detected. All mechanical and electronic components are protected by a solid casing.

    The measuring wire principle:

    A specially manufactured and calibrated wire is tightly wound around a high-precision drum that is driven against the pulled direction by a spring motor. Through the detection of the winding process the sensor converts the linear movement into an electrical signal.

    Major advantages:

    The sensor is compact, has a very high resolution and accuracy. It has a high dynamic and is insensitive to environmental infl uences.

    Please consider when using the PO 180:

    The exit angle of the wire from casing must be 90°, or there may be friction between the measuring wire and the casing, causing wear and tear. The top of the sensor should be protected against dirt and splash water and the measuring wire should not be positioned next to a machine or device part. The wire should never be loosened suddenly to avoid retraction into the casing.

     

    Hydrotechnik position sensor technical data

    Measuring principle measuring wire
    Output signal 4 ... 20 mA
    Protection type (EN 60529 / IEC 529) IP 65 (only with serial cable box)
    Material casing / measuring wire aluminium and high-grade steel / high-grade steel
    Signal type two wires
    Supply voltage Ub 12 ... 27 VDC
    Current consumption max. 35 mA
    Temperature coefficient ±0.01 % / K
    Nonlinearity < ±0.1 % of the measuring range
    Output noise 50 mVeff
    Resolution quasi infi nite
    Environmental temperature -20 ... +85 °C
    Storage temperature -20 ... +85 °C
    EMV test IEC 1000-4-2, -4, -5
    Vibrational stability on request
    Shock stability on request

    Hydrotechnik Position sensor Electrical connector

    Pin assignment 4 ... 20 mA
    Pin 1 = + Ub / signal +
    Pin 2 = – Ub / signal –
    Pin 3 – 8 = free
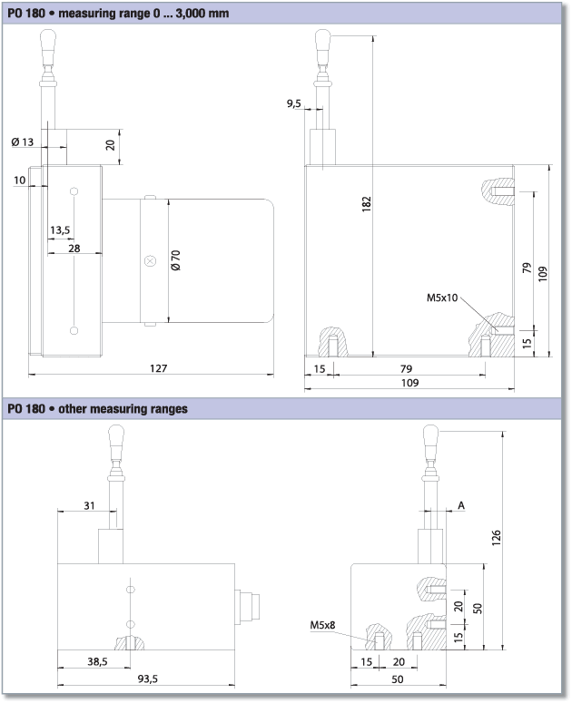
    Hydrotechnik position sensor PO180
    Measuring range Extraction force
    (max.)
    Retraction force
    (max.)
    Measure A Weight Order number
    mm N N mm g  
    0 ... 100 4.7 3.0 8.0 800 3183-13-03.37
    0 ... 375 7.4 3.9 12.5 800 3183-13-05.37
    0 ... 1000 5.3 2.9 8.0 800 3183-13-02.37
    0 ... 3000 6.2 3.0 10.0 1,550 3183-12-02.37
     

    1. 亚洲区色图欧美 | 亚州靠逼免费看 | 中文字幕第315页 | 美女被操免费视频网站 | 成人做爰A片免费播放乱码 |